클린워크벤치 안내
클린벤치란?
I. 정의
울트라 클린 벤치, 정화 벤치, 울트라 클린 테이블 등으로도 알려진 클린 벤치는 작업 환경의 국지적 높은 청정도를 제공하는 일종의 공기 정화 장비이며, 그 사용은 환경에 좋은 영향을 미칩니다. 공정 환경과 제품 품질 및 수율 개선.
II. 기초 원리
실내공기는 프리필터로 필터링되고, 원심팬에 의해 정압박스 안으로 눌려진 후, 헤파필터로 필터링되어 공기출구로 배출되어 깨끗한 공기흐름을 형성합니다. 깨끗한 공기 흐름이 균일한 단면 풍속으로 작업 영역을 통과하여 매우 깨끗한 작업 환경을 형성합니다.
III. 분류
공기 흐름 방향으로 구분: 수직 흐름 클린 벤치 및 수평 흐름 클린 벤치;
작업자 수에 따라 구분: 1인용 클린벤치 및 2인용 클린벤치;
운영 구조로 구분: 단면 작동 및 양면 작동;
용도로 구분 : 일반클린벤치, 생물학적클린벤치
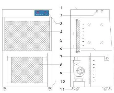
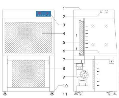
| 수직 흐름 클린 벤치 | 수평 흐름 클린 벤치 |
||
![]() |
![]() |
||
| 1.1차 필터 | 2. 원심 팬 | 1.박스 | 2.조명 |
| 3.HEPA 필터 | 4. 제어판 | 3. 제어판 | 4.HEPA 필터 |
| 5.다공판 | 6.조명 | 5. 적층 유리 |
6.SS 조리대 |
| 7.강화유리 | 8.소켓 | 7.소켓 | 8.1차 필터 |
| 9.SS 조리대 | 10.상자 | 9. 원심 팬 | 10. 바닥 다리 조절 가능 |
| 11.범용휠 | 12. 바닥 다리 조절 가능 | 11.범용휠 | |
깨끗한 벤치를 선택하는 방법은 무엇입니까?
IV. 클린벤치 구성
클린 벤치는 일반적으로 상자, 팬, HEPA 필터, 전기 컨트롤러 및 기타 주요 구성 요소로 구성되며 이러한 구성 요소의 상호 작용을 통해 먼지가 없는 멸균 작업 환경의 국지적 단방향 흐름 유형을 만들 수 있습니다.
V. 적용
이 기능에 따르면 클린 벤치는 의학 및 건강, 생물 의약품, 식품, 의학 과학 실험, 광학, 전자, 무균 실험실, 무균 미생물 테스트, 식물 접종 및 과학 분야의 깨끗하고 멸균된 작업 환경의 기타 요구 사항에 널리 사용됩니다. 연구 및 생산 부문.
6. 선택
수평 흐름 클린 벤치, 필터링된 깨끗한 공기가 뒤에서 앞으로 작업자에게 직접 불어오는 방식으로 주로 전자 및 정밀 기기 산업에 사용되며 건강에 미치는 영향은 크지 않습니다.
수직 흐름 클린 벤치는 위에서 아래로 필터링된 깨끗한 공기를 작업 표면으로 불어넣는 방식으로 주로 생물학 및 제약 산업에서 사용되어 작업자의 안전을 보장합니다.
또한 실제 필요에 따라 작업대의 1인/2인 또는 단면/양면 작동을 선택할 수도 있습니다.
클린벤치를 어떻게 사용하나요?
Ⅶ. 위치의 배치
깨끗한 작업대는 비교적 소수의 사람들이 돌아다니는 위치, 문에서 멀리 떨어진 위치에 배치되어야 장비 주변 환경의 공기 흐름이 상대적으로 안정적이고 작업 영역의 공기 흐름에 방해가 되지 않습니다.
Ⅷ. 실험 전 자가정화 및 살균
매일 사용 전 먼저 자외선 램프를 켜고 작업 부위를 조사하여 작업 부위 표면에 축적된 미생물을 제거하고 30분 후 자외선 램프를 끄고 팬을 켜서 3~5분간 작동시킵니다. 자가 정화를 완료하는 데 몇 분 정도 소요됩니다.
Ⅸ. 실험 후 세척 및 살균
실험 과정에서 사용되는 도구/물체는 먼저 알코올로 닦아야 하며, 작업대에 넣기 전에 살균 처리를 해야 하며, 작업이 끝난 후에는 장비 청소, 특히 작업대 청소에 주의를 기울여야 합니다. 테이블 표면은 청소가 완료된 후 전원 공급을 차단하기 전에 UV 램프를 켜서 살균하는 것이 가장 좋습니다.
X. 유지보수 및 유지
환경의 청결도에 따라 기본 필터를 청소하거나 교체해야 하며 HEPA 필터를 교체해야 합니다. 램프와 UV 램프의 수명이 다한 후에는 동일한 사양의 램프로 교체하십시오.











